Aller au contenu principal
Toggle navigation
Nathalie Merveille Architecte
Projets
Agence
Presse
Journaux
Livres
Revues
Vidéo
Contact
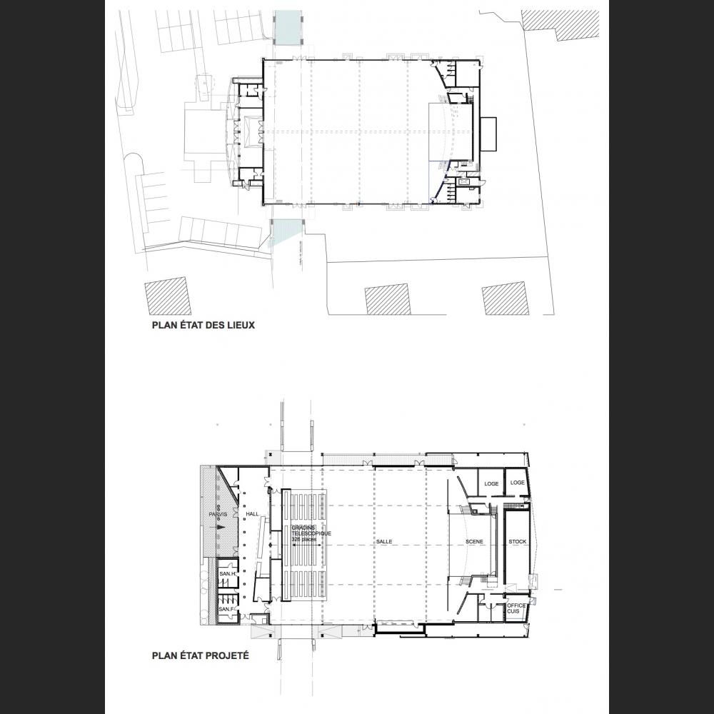
Salle des fêtes de Sorgues (84)
< Culture
Année : 2018-2019
Maître d'ouvrage : Mairie de Sorgues (84)
Architecte(s) : Nathalie Merveille
Programme : Extension et réhabilitation de la salle des fêtes avec équipements scéniques et tribune télescopique
Surface : 1789 m2
Coût : 3 005 700 Euros
ad